Direct naar de inhoud

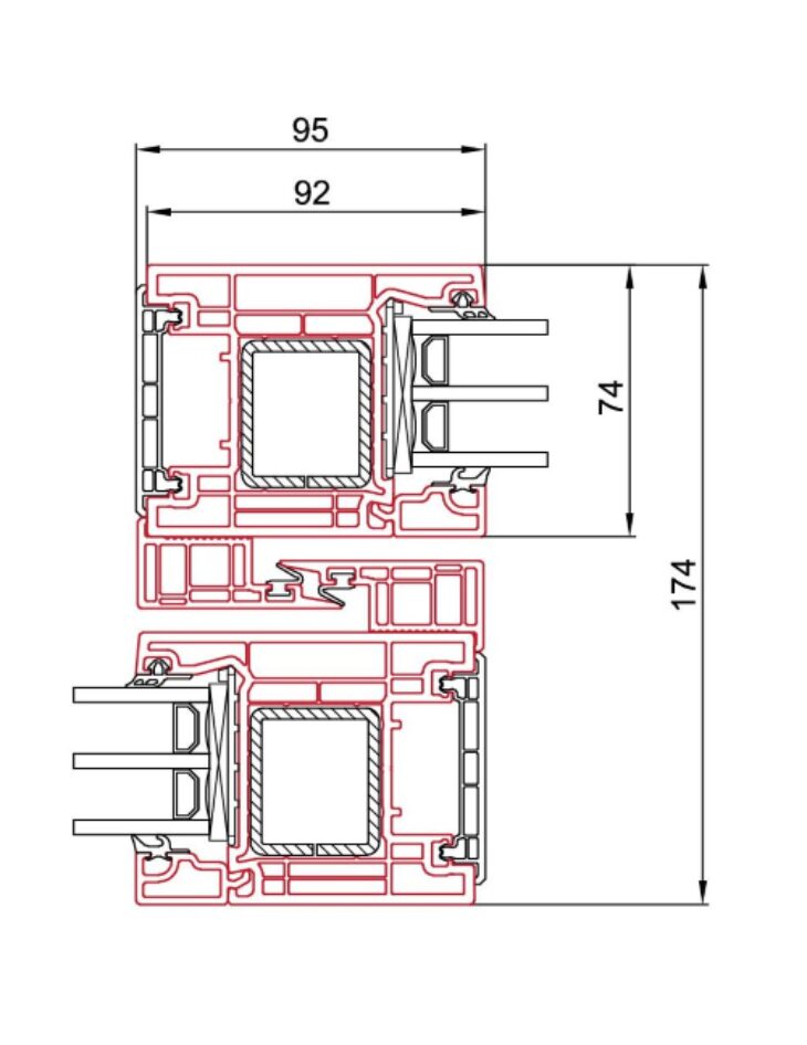
Systeem QuinLine® 74 Edge

Het rechte profielsysteem

Edge grijs

In de moderne architectuur draait alles om zuivere lijnen en minimalistische details. De QuinLine® 74 Edge hefschuifdeur is speciaal ontwikkeld om aan deze vraag te voldoen. Waar traditionele profielen vaak ronde vormen hebben, kiest de 74 Edge resoluut voor een hoekig en strak ontwerp.

Karakteristiek design zonder compromissen

Karakteristiek voor de QuinLine® 74 Edge zijn de strakke lijnen en de moderne precisie in de afwerking. In dit ontwerp is bewust geen gebruik gemaakt van rondingen. Dit resulteert in een opvallende, bijna rechthoekige contour die perfect aansluit bij de huidige trends in woningbouw en utiliteit. De smalle vleugelsponning en de speciaal ontwikkelde hoekige glaslatten versterken dit moderne karakter, waardoor het systeem naadloos combineert met andere hoekige raamprofielen in de gevel.

Tot 50 mm glasdikte

Innovatie in isolatie

Esthetiek gaat bij de QuinLine® 74 Edge hand in hand met technische topprestaties. Dankzij de slimme opbouw van het profiel kunnen glasdiktes tot maar liefst 50 mm worden toegepast. Dit biedt ongekende mogelijkheden voor de toepassing van zeer energie-efficiënte triple glas-variaties.

Door te kiezen voor de 74 Edge investeert u niet alleen in een prachtig aanzicht, maar ook in een duurzame schil. De verbeterde isolatiewaarden maken de hefschuifdeur uitermate geschikt voor energieneutrale woningen en projecten waarbij de hoogste eisen aan thermische prestaties worden gesteld.

2400 Quin Line 74 Edge Mittelstoß mit Maßen 002

Waarom kiezen voor QuinLine® 74 Edge?

  • Duidelijke designtaal: Een rustig en helder gevelbeeld zonder overbodige rondingen.
  • Hoogwaardige techniek: Gebaseerd op het bewezen en betrouwbare QuinLine® 5-kamersysteem.
  • Maximale efficiëntie: Optimaal rendement door de ondersteuning van dikkere glaspakketten.
  • Architectonische vrijheid: De ideale match voor objecten waar een modern en strak lijnenspel de boventoon voert.

Met de QuinLine® 74 Edge kiest u voor een product waar esthetiek en innovatie elkaar ontmoeten. Het resultaat is een hefschuifdeur die niet alleen opvalt door zijn uiterlijk, maar ook uitblinkt in dagelijks comfort en duurzaamheid.

Ervaar het comfort van perfecte dorpels

De dorpels van SCHMIDT combineren hoogwaardige materialen en slimme techniek voor duurzaamheid en gebruiksgemak. Dankzij dubbele thermische scheiding en nauwkeurige productie lopen de schuifvleugels soepel en licht. De thermisch gescheiden dorpelkamers houden kou en warmte buiten, voor optimale isolatie. Met onze unieke renovatiedrempel vervang je oude hefschuifdeuren eenvoudig, zonder stof en freeswerk. 

Bekijk het volledige dorpelaanbod

Flaaksikker229295kv Westergeast NL 20 highres

Extra uitrusting voor maximale veiligheid en comfort

Onze speciale uitrustingen maken uw hefschuifdeuren veiliger, soepeler en gebruiksvriendelijker, en verhogen het comfort zonder extra moeite voor de gebruiker.

Bekijk onze speciale uitrustingen 

Quin Line Hebeschiebetür 55 compressed

Geniet van buiten, houd insecten buiten

De InScreen van SCHMIDT is de nieuwe standaard in insectenwering. In plaats van een losse toevoeging, vormt deze hor één geheel met het QuinLine® systeem. Het plissé-kader is discreet verwerkt in de vaste vleugel en de dorpel, waardoor de doorgang volledig drempelvrij blijft. Hierdoor geniet u van een onbelemmerd uitzicht en een strak design, zonder concessies te doen aan functionaliteit. De hoogwaardige afwerking zorgt voor een geruisloze bediening, passend bij het niveau van uw hefschuifdeur.

Ontdek de techniek achter de InScreen insectenhor

In Screen Außenansicht cropped

Innovatie in elk detail. 

Onze 2- tot 4-delige QuinLine®-systemen staan bekend om hun veelzijdigheid en ruimtebesparende eigenschappen. Om voorop te blijven lopen in de markt, hebben we onze technologie verder verfijnd. In onze nieuwe innovatiebrochure presenteren wij u de nieuwste generatie hefschuifdeuren: nog efficiënter, veiliger en esthetischer.

Download de brochure en bekijk alle nieuwe mogelijkheden.

Download innovatiebrochure

Thumbnail fensterbau

Gecertificeerde veiligheid 

Met QuinLine® kiest u voor zekerheid. Onze hefschuifdeuren zijn op elk detail getest en gecertificeerd volgens de strengste normen. Of het nu gaat om een twee-, drie- of vierdelig model: wij bieden de maximale bescherming die uw woning verdient.

Meer informatie

Header sicherheit aspect ratio 1460 1000 1460x1000 c center

De perfecte match voor uw interieur 

Geef uw hefschuifdeur een eigen karakter. Of u nu houdt van een moderne, industriële look of een warme, natuurlijke uitstraling; met ons brede scala aan hoogwaardige folies en aluminium voorzetschalen zijn de mogelijkheden eindeloos. Creëer een pui die naadloos aansluit bij uw persoonlijke stijl en de architectuur van uw woning.

Ervaar de kleuren

Slider Koningridderdijk510801 Middelkerke15 compressed

Heeft u vragen?

We beantwoorden graag al uw vragen over onze producten en diensten. Neem contact met ons op.

Contact